The property
Land Area 5000 mqFeatures
• Terrace • LandDescription
PRICE REDUCTION FOR QUICK SALE
There are tax incentives for foreigners who relocate to this Municipality - 7% flat rate on foreign sourced income for 10 years
This newly built, fully earthquake-proof and energy-efficient villa with 8.6 kW of photovoltaic panels for electricity production offers stunning 360° views over valleys, medieval villages, and the Sibillini Mountains.
A perfect alternative to traditional farmhouses for sale Marche, combining modern comfort with authentic countryside living.
The villa measures approx. 250 m² and features a 25 m² porch, 25 m² pergola, and a 30 m² panoramic terrace. The land extends to 5.000 m², with the option to purchase an additional 1.5 hectares, partly planted with a productive vineyard—ideal for those seeking authentic Marche country homes.
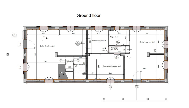
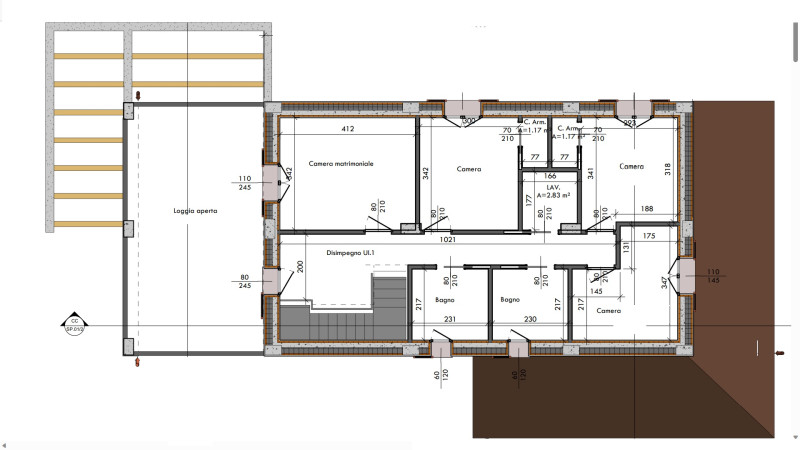
The property includes two independent apartments:
- Ground floor (85 m²): living room opening onto the porch, eat-in kitchen, two double bedrooms, and bathroom. The porch can be enclosed to create a winter garden.
- Main apartment (165 m²): spacious living area with kitchen, plus four double bedrooms, three bathrooms, laundry room, and terrace with mountain and sea views on clear days.
KEY FEATURES
- Underfloor heating
- 8.6 kW photovoltaic system (battery storage ready)
- High-performance thermal insulation
- Possibility to build a swimming pool
- Buyer-choice exterior paint
LOCATION
Just 5 minutes from Monte San Martino, 30 minutes from the Sibillini Mountains, and 45 minutes from the Adriatic coast—ideal as a main residence or for high-yield holiday rentals.
Presented by Vinci Properties Real Estate, specialists in exclusive country homes and farmhouses for sale in Marche.
*The information provided in this listing is for preliminary informational purposes only and does not constitute a contractual obligation. It has been prepared based on data available at the time of publication. Therefore, we do not accept any responsibility for possible inaccuracies, omissions, or subsequent changes
To protect the privacy of the property owners, please note that the address shown on the map is only an approximate indication of the property's location




















