The property
Land Area 3000 mqFeatures
• Annex • Terrace • Land • Sea view • Hot tubDescription
Sea-view farmhouse with garden, annex and garage, just a few kilometers from the beaches of Portonovo, Conero, Ancona.
Amid the rolling hills of Varano stands this typical Marche farmhouse—an ideal opportunity for anyone looking for properties for sale in the Conero area, Ancona. It is an elegant country home, rebuilt with great attention to preserving its original rural architecture.
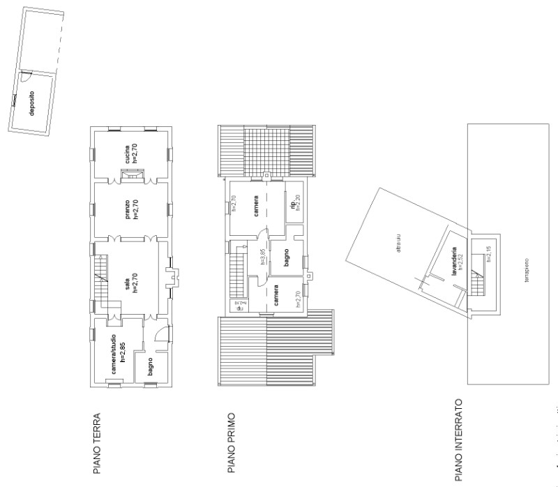
This farmhouse for sale on the Conero is arranged over three levels for a total of 240 sqm:
- Ground floor: a cozy living room with fireplace, a spacious dining room and a well-designed masonry kitchen, also equipped with a fireplace. All rooms have direct access to the garden. This level also includes a bedroom and a bathroom with shower.
- First floor: the sleeping area features a master bedroom with access to a sea-view terrace, a walk-in wardrobe, a second double bedroom with wardrobe, and a bathroom with hydromassage tub and shower.
- Basement: connected internally to the house, it offers a laundry and storage room of about 20 sqm, and a double garage of 30 sqm.
Within the courtyard, there is also a 16 sqm annex, consisting of one room and a bathroom.
Outdoors, a large private garden of 3,000 sqm, fully fenced, surrounds the farmhouse, creating an oasis of tranquillity immersed in the countryside, with open views of the sea and surrounding hills. The property features two entrances with automatic gates and includes a paved area, perfect for enjoying the outdoor spaces throughout the year.
Utilities and service
All utilities are active and fully functioning. Underfloor heating ensures comfort in every season.
Location
The property is located just a few kilometers from the sea and close to:
- Ancona Passetto – 7 km
- Portonovo Beach – 5 km
- Falconara Airport – 20 km
A unique opportunity for anyone seeking a farmhouse for sale on the Conero or a villa for sale on the Conero, where authenticity, landscape and comfort come together in the heart of nature.



















