The property
Land Area 2500 mqFeatures
• Annex • TerraceDescription
Typical three storey brickwork restored Marche farmhouse of about 325 sqm, with very large portico (porch) of about 60 sqm, detached outbuilding to be rebuilt of about 90 sqm, cellar of about 10 sqm, on a fenced garden of about 2.500 sqm, with extraordinary view of the Sibillini Mountains, the surrounding hills and medieval cities!
FEATURES
- The ground floor of this typical Marche farmhouse of about 120 sqm is divided into a wide living room with fireplace with dining area, a kitchen, a laundry - utility room, a study and a bathroom. The living room leads to the stunning 60 square meter portico (porch) with antique terracotta tile flooring. From here, you can access the garden, adorned with beautiful mature trees. From the portico and garden, you can enjoy the spectacular view of the Sibillini Mountains.
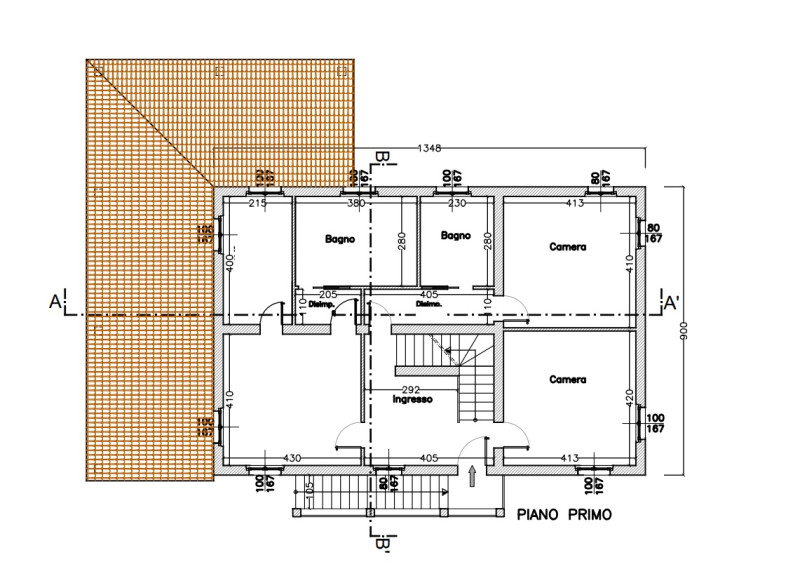
- An internal staircase leads to the first floor, of about 120 sqm which is accessible also from the external stairs typical of the Marche farmhouses, which is divided into an additional living area, three double bedrooms one of which with en-suite bathroom with bathtub and shower and a walking closet, an additional bathroom with shower serves the other bedrooms.
- The internal staircase leads to the second attic floor, also finely finished, hosting a study, two bedrooms, and a bathroom. This floor also offers access to the large 35 sqm terrace.
Under the external tiled patio there is an cellar of about 10 square meters, while detached from the house an outbuilding to be rebuilt of about 90 square meters which can be transformed into a further residential unit or as a garage, workshop or any use one wants to make of it.

The property is located in a beautiful natural setting, accessible through a very well maintained white road. The nearest grocery is only at 1 km, the medieval village of Montegiorgio is only 2 km away, the beaches of Porto San Giorgio at 30 km and the sky resort at 50 km.
STATE AND FINISHES
The farmhouse has been completely renovated by the current owner and the works were completed in 2010.
The finishes are of high quality.
The heating is underfloor.
The windows are double glazed wood as in wood are the shutters and the hand painted internal doors.
The gates are electric.
The property is completely fenced.
SERVICES AND UTILITIES
The property is supplied with electricity, liquid propane gas and town running water.
There is a well active all year round that supply water to the garden and its irrigation system.
USE AND POTENTIALITY
Given its enviable proximity to the historic center of the Montegiorgio, and the short distance from the Adriatic Sea, this property is excellent for both private use and seasonal rental.
LOCATION
Supermarket at 3 km
Coast at 30 km
Lake 25 km
Ski resort 50 km
Airport 80 km
*The information provided in this listing is for preliminary informational purposes only and does not constitute a contractual obligation. It has been prepared based on data available at the time of publication. Therefore, we do not accept any responsibility for possible inaccuracies, omissions, or subsequent changes
To protect the privacy of the property owners, please note that the address shown on the map is only an approximate indication of the property's location




















