The property
Description
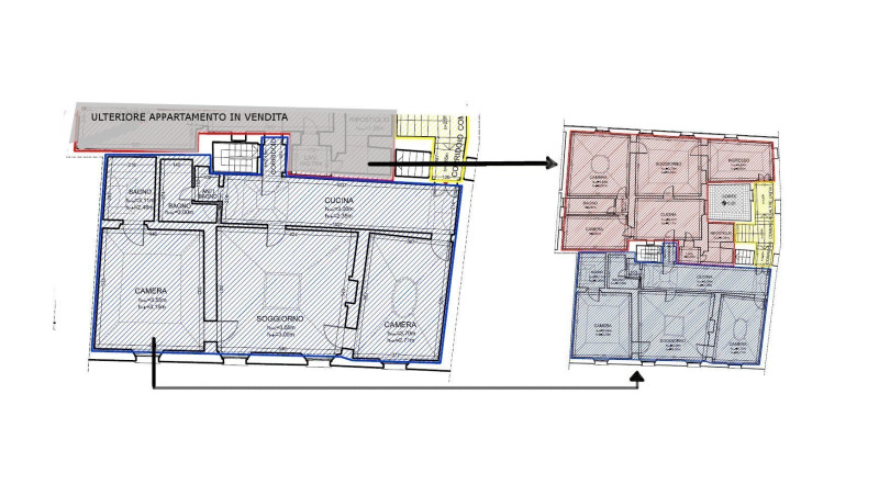
Meticulously restored 2 bedroom apartment with frescoes for sale in Le Marche in the province of Pesaro. An additional adjacent apartment, cellars, rooms, and grotto on the ground floor are available
Location
Historic center of Mondavio
25 mins to the A14 motorway
25 mins to the seaside at Marotta
45 mins to Ancona and Rimini international airports
Features
Mondavio is the quintessential hilltop village in the heart of the Marche countryside and this beautifully restored apartment is just off its handsome main square.
The 140 m2 apartment is on the first floor of a recently restored 18th Century palazzo that overlooks the loggia and public gardens the church of San Francesco. It has:
- A large kitchen area (kitchen and appliances to be installed)
- a drawing room with painted ceilings,
- 2 bedrooms,
- 2 bathrooms and
- a laundry room.
For the restoration, original materials such as the terra cotta floors and fireplaces have been used throughout. Particular attention has been given to making sure the rooms are light and airy by using pastel colours and making openings wherever possible. The house was renovated in 2013 to anti seismic standards.
Also available are:
- Another 2 bedroom apartment on the same floor that can be attached – € 290.000
- A 130 m2 cellar consisting of partially vaulted brick lined rooms and a spectacular grotto, 2 further restored large rooms, covering about 120 m2, with vaulted brick ceilings and terra cotta floors and with a separate entrance onto the street. This area would make an excellent office/studio, A small shop with bathroom also leading onto the road at the front of the palazzo. € 110.000




















