The property
Land Area 1000 mqDescription
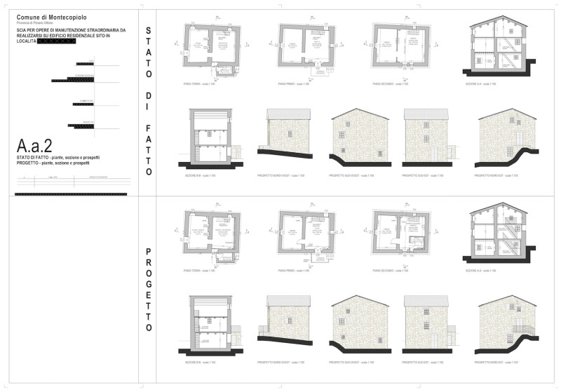
Detached stone house, internally in its raw state with garden, externally already restored.
LOCATION
The house is located in the small village of Pugliano, in the upper Valmarecchia, a few km from the Villagrande ski area, very close to the fortress of San Leo. An area with a strong tourist vocation for the numerous medieval historical testimonies of which the Valmarecchia is rich. Less than 1 km away is Pugliano, a village still famous today for the cattle festival that still brings together numerous agricultural/peasant realities in the area.
DISTANCES
RIMINI, 35 Km, Motorway, Railway Station, Airport, Port, Important road junctions in central Italy.
S. Marino, 10 Km, Heliport, Highway, Important Road Junctions in central Italy
S.S. 258 Marecchiese, Important and strategic state road that connects Romagna to Tuscany
CONSISTENCY
The property is externally restored, the roof, in slate slabs, is the result (as indeed is) of a careful restoration by skilled local craftsmen. Ground and sky on three floors, inside in the raw state offers the possibility of being developed to your liking. In a particularly panoramic area, the property includes a garden (partly fenced) of about 1000 square meters. The house is totally independent, bordered on the back by the road of the hamlet where it is perfectly inserted in the whole, in the front part opens the garden, with a direct view of the mountains of Villagrande and Carpegna, without any interference from other houses. The internal part is totally unfinished and can be developed as desired on three levels, ideally creating a solution that is relatively easy to heat and manage.The fact that it is modest in size will allow you to manage choices and spaces as you please as well as a considerable saving in the costs of the internal renovation of the building.
SERVICES
The property, being located in a small village, in the future will be able to have all the normal network utilities available in the area, among other things also well served by telephone users and WI.FI network. The road to the hamlet passes right at the back of the house and is located next to the small (ancient) church of Pugliano. The connections to Tuscany and the main roads are well maintained and do not create problems even in the winter season.
FINISHES
The property, finished only externally, has no finishes, therefore allows it to be developed to your taste and liking.
POTENTIAL
The property lends itself perfectly to being used as a second home and as an income property with great potential to be rented out for tourists who love tranquility and culture. With its proximity to Rimini, it allows you to experience Romagna while remaining in a village with a beautiful historical context and well served, but outside the chaos of the city, considering the strategic position, it allows you to easily reach the Riviera, Tuscany and numerous medieval villages located nearby.
PROPERTY DATA
The property is private with no mortgage constraints















