Porzione di casale in vendita nelle Marche a Montalto
La Proprietà
Terreno 2000 mqDettagli
• Terrazza • TerrenoDescrizione
Casolare da ristrutturare, in vendita. Situato nelle splendide Marche, in provincia di Ascoli Piceno, nel comune di Montalto delle marche.
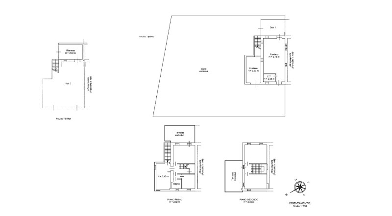
La vendita riguarda una porzione dell'intero immobile, nello specifico la metà, affiancato quindi ad una sola altra proprietà, per una superficie totale di circa 200 M²,questa proprietà vanta spaziosi e luminosi, ideali per accogliere una grande famiglia
L'immobile è disposto su tre piani, composto da cucina abitabile oltre soggiorno, tre camere da letto ed un bagno, due grandissimi terrazzi. Questa disposizione garantisce una luminosità naturale costante in ogni stanza, creando un'atmosfera piacevole e rilassante. L'esposizione della casa è ideale, con una distribuzione dei locali su tre lati: nord, est e sud. Al piano terra, vi è la possibilità utilizzarlo anche come ulteriore piano abitativo visto l'ingresso autonomo e soffitti di oltre 2,75 mt, è composto da un locale open space, una rimessa ed un locale garage.
La proprietà è completa di un ampio giardino, arricchito da alberi da frutto. Inoltre, un terreno adiacente alla proprietà di circa 2000 mq offre la possibilità di coltivare ortaggi o di creare un'area dedicata agli animali domestici.Per quanto riguarda il parcheggio, la proprietà dispone di corte privata con ampia zona per posti auto. Tra le dotazioni aggiuntive, ci sono una cantina e un magazzino, oltre un annesso di 9 mq perfetto per riporre attrezzi da giardino e altri oggetti.
Una vera opportunità per vivere immersi nella natura, senza rinunciare alle comodità della vita moderna.
CONDIZIONI E FINITURE
Il casale ha subito recentemente interventi di menutenzione strutturali esterni, necessari interventi interni, pavimentazione in graniglia, soffitti con travi originali a vista, infissi in alluminio con doppi vetri singoli.
ESTERNI
L'immobile è affiancata ad altra proprietà, è libera sui lati Nord- Est- Sud. La corte include un bellissimo giardino, dove potrai godere di momenti di relax o organizzare cene e feste all'aperto con gli amici. Inoltre, sono presenti 2000 mq circa di terreno agricolo.
SERVIZI E UTENZE
Tutti i servizi sono connessi.
UTILIZZO E POTENZIALITÀ
La proprietà risulta ideale sia come casa per le vacanze che come residenza principale. Si trova a poche centinaia di mt da negozi e ristoranti, che rende questa proprietà adatta anche ad essere adibita a B&B. Questa casa si trova a pochi minuti di auto da spiagge e montagna. Le vicine città collinari medievali offrono fantastici cibi locali, cultura e storia. Sagre e mercati locali rendono la zona vivace.
POSIZIONE
Questo casale è situato in una zona tranquilla e riservata, lontano dal trambusto della città, ma allo stesso tempo vicino a tutti i servizi essenziali. Ideale per godersi la pace e la serenità della campagna Marchigiana, senza rinunciare alla comodità della vicinanza a negozi, ristoranti e altre attrazioni locali.
DISTANZE
Supermercato a 0,5 km
Costa a 25 km
Stazione sciistica 35 km
Aeroporto 100 km.



































