Agriturismo di successo con agricampeggio, ristorante e prodotti biologici
La Proprietà
Terreno 45000 mqDettagli
• Appartamento indipendente • Piscina • Vigneto/UlivetoDescrizione
Agriturismo operativo e di successo con agricampeggio, ristorante e prodotti biologici, immerso nella natura incontaminata con splendide viste panoramiche.
Un casale con appartamento e zona B&B, una piccola casa in pietra, una dependance con cucina professionale, ristorante, negozio/reception e servizi igienici per 12 piazzole con vista sulle colline, sui borghi medievali e sui Monti Sibillini.
CARATTERISTICHE
Questa fantastica proprietà è composta da:
- Fabbricato Principale
Un casale di nuova costruzione, in mattoni e intonaco, di circa 310 mq distribuiti su due piani, con un portico di circa 14 x 2,5 metri, attualmente in fase di ricostruzione completa secondo le più recenti normative antisismiche.
Il progetto, la cui conclusione è prevista ad maggio 2027, comprende un ampio soggiorno e cucina di circa 65 mq al piano terra, con accesso al portico tramite ampie porte finestre, oltre a un bagno e circa 75 mq di spazio adibito a laboratorio (uesto spazio potrebbe essere utilizzato anche come ulteriore zona notte con due camere da letto extra.)
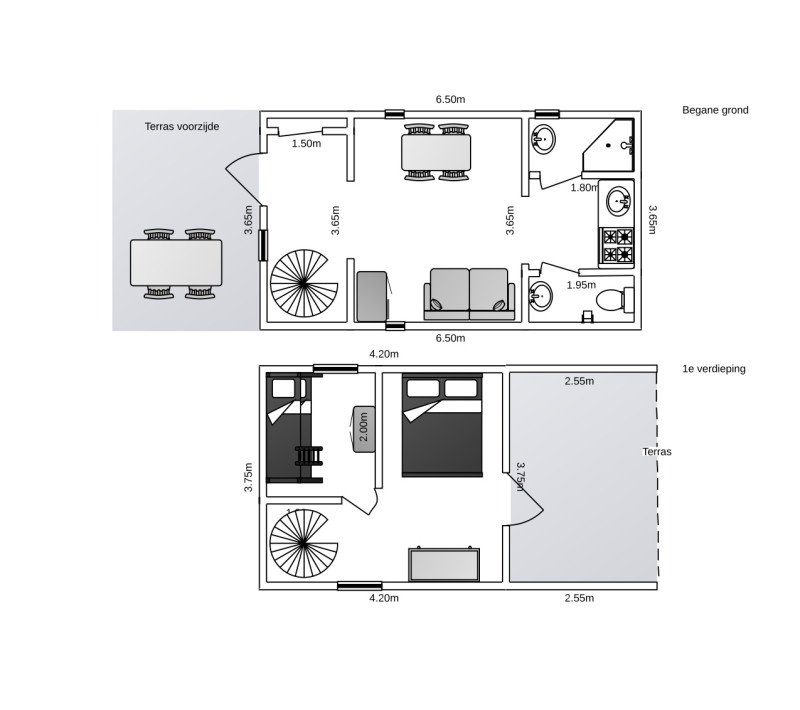
Una scala interna conduce al primo piano, dove si trovano un bagno, due camere matrimoniali e un ripostiglio.
Una scala esterna conduce alla zona B&B composta di soggiorno, due camere matrimoniali e bagno. Dal primo piano, una botola e una scala retrattile consentono l'accesso a una comoda soffitta.
La disposizione interna e le finiture possono essere personalizzate in fase di costruzione.
La casa colonica sarà dotata di riscaldamento a pavimento su entrambi i piani, di un impianto fotovoltaico con batteria di accumulo da 10 kW e di acqua calda sanitaria prodotta e immagazzinata tramite energia solare.
Questo rende la casa colonica altamente efficiente dal punto di vista energetico, grazie all'eccellente isolamento, a sistemi efficienti come una pompa di calore e pannelli solari e a un ambiente interno salubre.
- Piccola Casa in Pietra
Questa casa in mattoni, un tempo stalla, è stata completamente ristrutturata e trasformata in un grazioso piccolo cottage, conservandone gli elementi e i materiali caratteristici.
Ha una superficie di circa 45 metri quadrati ed è composta da soggiorno, cucina, bagno e toilette separata al piano terra. Al primo piano si trovano una camera matrimoniale e una camera singola.
La casa è dotata di finestre con zanzariere e inverter (caldo - freddo) su entrambi i piani.
Dispone di terrazza coperta, giardino e parcheggio privato con stazione di ricarica da 7,4 kW per auto elettriche.
L'elettricità è in parte fornita dai pannelli solari da 6 kW con sistema di accumulo da 5 kW del terzo edificio: il fabbricato multifunzionale (more details below).
- Fabbricato Multifunzionale
Questo edificio antisismico, di recente costruzione (2017), è di circa 75 metri quadrati e si compone di tre parti: una zona pranzo/negozio, una cucina professionale con ripostiglio e servizi igienici e un'area servizi igienici per il campeggio.
La cucina professionale/laboratorio, completamente attrezzata per la preparazione dei pasti e dei prodotti biologici, è in perfette condizioni, praticamente nuova. Lo spazio è riscaldato da una stufa a pellet e presenta infissi che non richiedono manutenzione, con vetri e schermi extra insonorizzati.
L'area negozio ospita anche diversi tavoli, tavoli aggiuntivi sono situati nella veranda esterna coperta chiusa con porte scorrevoli in vetro.
La veranda esterna, riscaldata con stufe da esterno, offre una splendida vista e dispone anche di un elegante e caratteristico barbecue in mattoni.
L'energia per questo edificio, la piccola casa in pietra e il campeggio è fornita da un impianto fotovoltaico da 6 kW con una batteria di accumulo da 5 kW e dalla rete elettrica.
L'acqua calda e la cucina sono alimentate da due scaldabagni a gas.
- Agriturismo Attività Campeggio
Il campeggio, perfettamente attrezzato e terrazzato, dispone di piazzole situate su diverse terrazze ricavate sulla collina, ognuna con una splendida vista panoramica.
Ogni piazzola dispone di un proprio allaccio elettrico, un punto acqua nelle vicinanze e molta privacy.
I servizi igienici includono 3 docce, 3 WC, lavandini, un'area lavaggio stoviglie e una lavatrice.
Il numero di piazzole può essere ampliato.
L'agricampeggio comprende un parco giochi con una roulotte ludica, giochi e libri per bambini, attrezzature da gioco e un tavolo da ping-pong.
È presente anche una piscina di 8 x 4,7 metri e profonda 1,3 metri, montata su cemento armato (anno di costruzione 2025).
La piscina offre refrigerio durante il giorno ed è collegata ad una terrazza coperta piastrellata con doccia esterna riscaldata dall'energia solare.
La sera, gli attuali proprietari servono ricche cene italiane sulla terrazza.
- Parte Agricola
L'agriturismo è certificato biologico e comprende circa 4,5 ettari di terreno, parte dei quali in affitto.
Comprende un uliveto per produzione di olio d'oliva, terreni seminativi produzione di cereali/farro, un vigneto per la produzione di vino, alberi da frutto e noci anche per la produzione di marmellate, un orto ad uso ristorativo, per la conservazione e per uso personale, e un pollaio con spazio esterno.
È presente un impianto di irrigazione per l'irrigazione degli ortaggi.
È possibile acquistare macchinari agricoli come trattori, aratri, motozappe, trinciasarmenti, ecc., nonché attrezzature per la produzione di vino e l'imbottigliamento e l'etichettatura dell'olio d'oliva.
- Ristorante
L'attuale ristorante può ospitare 32 persone, sia dal campeggio che dall'esterno.
- Negozio
L'azienda agricola gestisce prodotti biologici al 100%, utilizzati nei pasti del ristorante e trasformati in prodotti venduti a livello locale e internazionale.
L'agriturismo dispone di un sistema di vendita online e di un'ampia clientela con ordini settimanali e clienti abituali.
Questa attività può essere proseguita dai nuovi proprietari.
CARATTERISTICHE AGGIUNTIVE
Un sistema idrico da 1000 litri con pompa per pressione costante.
Una fossa settica per le acque reflue
Un pozzo di falda
CONDIZIONI E FINITURE
Il casale è in corso di costruzione secondo le più recenti normative antisismiche e di isolamento acustico e termico. Le divisioni interne ed I materiali di finitura possono essere personalizzati. Sia la piccola casa in pietra che il ristorante/negozio sono in perfette condizioni strutturali e interne.
UTILIZZO E POTENZIALITÀ
La sua posizione, vicina sia al mare che ai sentieri escursionistici dei Monti Sibillini, rende questo splendido agricampeggio una destinazione ideale per chi cerca pace nella natura incontaminata, pur avendo la possibilità ogni mattina di scegliere tra una gita al mare o un'escursione in montagna.
Nelle vicinanze sono presenti anche percorsi ciclabili/mountain bike.
La proprietà è immersa nello splendido paesaggio marchigiano, a soli 5 minuti di auto dal borgo medievale di Penna San Giovanni, con bar, ristoranti e supermercato.
I Monti Sibillini sono a 20 minuti e la costa di Porto San Giorgio a 45 minuti.
Gli aeroporti di Ancona, Perugia e Pescara sono raggiungibili in poco più di un'ora di auto.
POSIZIONE
Supermercato a 5 km
Costa 45 km
Lago 15 km
Stazione sciistica 45 minuti
Aeroporti a 80 minuti

 
                






































