La Proprietà
Terreno 5000 mqDettagli
• Annesso • TerrenoDescrizione
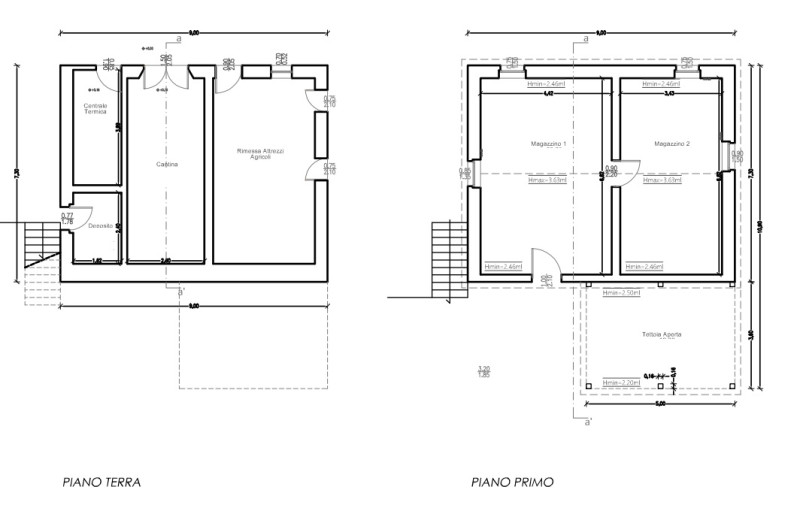
Nella campagne di Sant'Angelo in Pontano proponiamo in vendita una casa di campagna di circa 270 m2 distribuita su 3 livelli completamente ristrutturata con la possibilità di raggiungere n° 6 camere matrimoniali, ed un secondo fabbricato attualmente accatastato come magazzino di circa 160 m2 da ultimare internamente , che potrebbe essere trasformata in ulteriore superficie residenziale.
Inoltre la proprietà comprende un altro fabbricato ora adibito a legnaia di circa 70 m2.
La proprietà si presta ad essere utilizzata come B&B, casa per famiglie numerose o pluri-familiare.
I lavori di ristrutturazione con riqualificazione sismica e termica, sono appena stati completati e comprendono anche l'isolamento esterno e un impianto fotovoltaico di circa 6 kW con batteria di accumulo.
Classe energetica ''A''
Prezzo richiesto con 5.000 mq di terreno € 337.000.
E' possibile acquistare terreno agricolo aggiuntivo di 35.000 mq circa con fabbricato accessorio agricolo di circa 120 mq in pianta alto 5,2 m, con prezzo da computare a parte.
Per proteggere las privacy dei proprietari delle abitazioni, ricordiamo che l'indirizzo sulla mappa è puramente indicativo della posizione dell'immobile




















