La Proprietà
Terreno 2500 mqDettagli
• Appartamento indipendente • TerrazzaDescrizione
Casale ristrutturato con vista mare a soli 10 minuti dalla spiaggia, 2 appartamenti, 5 camere
La proprietà in splendida posizione esposta a sud, è divisa in due appartamenti indipendenti,con ingresso entrambi dal giardino.
CARATTERISTICHE
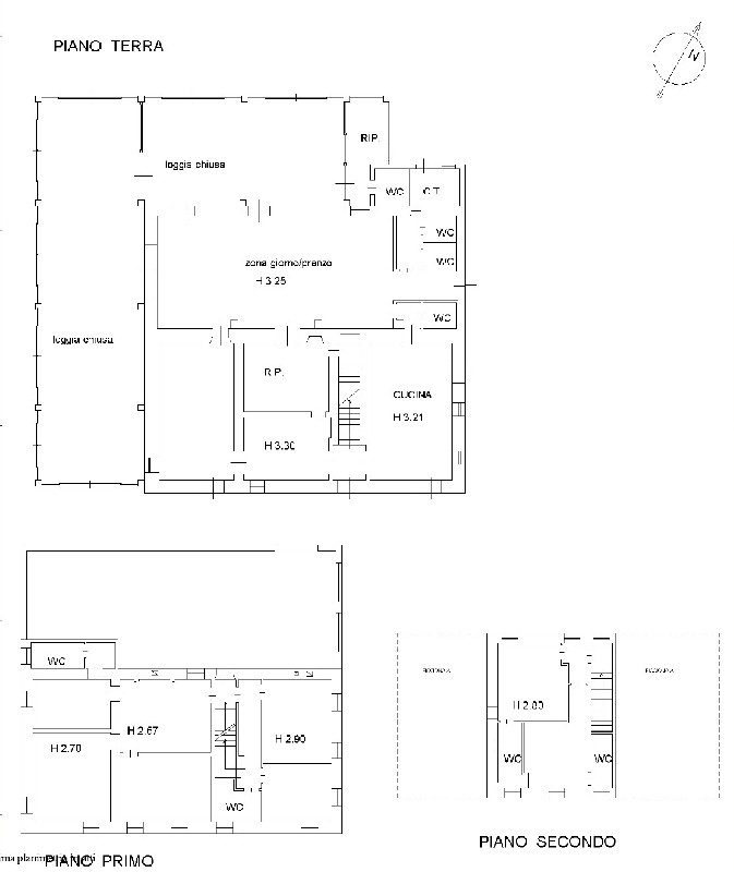
- Il primo appartamento ha un ingresso, salone-cucina, un bagno, due camere, una matrimoniale ed una singola, e due ripostigli, questo appartamento si sviluppa tutto al piano terra. Classe energetica E (EPgl,nren 126,66kWh/m² anno).
- Il secondo appartamento, ha un ingresso-salone con camino, un grande soggiorno che affaccia, con grandi vetrate, sul portico e sulla parte retrostante del giardino e della casa. Si ha poi una cantina dei vini ed un bagno. Al piano superiore ci sono 2 camere matrimoniali ampie, un bagno con vasca idromassaggio e la camera matrimoniale padronale con cabina armadio e bagno privato.
Da questa camera e dal disimpegno si accede al grande terrazzo, con vista mare e vista monti e borghi vicini.
Al piano terzo, a cui si accede tramite scala retrattile, c'è anche una soffitta che può essere usata come ripostiglio. Classe energetica D (EPgl,nren110,36kWh/m² anno).
Il casale, di circa 350mq, è stato ristrutturato intorno al 2006, usando materiali di pregio, parquet nell'appartamento più grande, gres porcellanato per l'appartamento più piccolo.
Gli infissi e le persiane sono in alluminio,con doppio vetro e zanzariere. I portoncini sono blindati,il riscaldamento è a pavimento per entrambi gli appartamenti al piano terra, mentre al primo piano ci sono i radiatori, è inoltre presente un impianto d'allarme, illuminazione esterna e un pozzo.
Il casale è circondato da un splendido giardino di circa 2500mq con diverse piante che garantiscono ombreggiatura e relax durante tutto l'anno e in special modo durante il periodo estivo insieme al portico e la terrazza che danno alla casa un valore aggiunto per chi ama vivere molto anche all'esterno. Il giardino è completamente recintato con cancello all'ingresso.
POSIZIONE
La posizione della proprietà è ideale sia per chi sta cercando una casa dove trascorrere dei periodi di vacanza, ma anche ideale per chi decide di usarla come casa principale, perché tutti i servizi sono vicini, la posizione è comoda, facilmente accessibile e a soli 10 minuti di macchina dal mare e a 5 minuti dal borgo.
Il casale si trova a circa 10 minuti dall'uscita dell'autostrada di Porto San Giorgio e a circa 40 minuti dall'aeroporto di Ancona-Falconara.
La proprietà rappresenta un'ottima opportunità anche per gli affitti turistici, data la sua bella posizione con vista panoramica.
C'è la possibilità di acquistare ulteriori 4 ettari di terreno seminativo con circa 80 ulivi.



















