La Proprietà
Dettagli
• Appartamento indipendente • Terrazza • Vista mareDescrizione
Un ampio terrazzo con vista che abbraccia il mare, il Monte Conero, la campagna marchigiana e la città di Fermo: questo appartamento a Lapedona è un invito alla bellezza e al relax.
CARATTERISTICHE
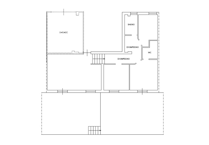
A soli 5 minuti a piedi dal suggestivo borgo medievale e 5 km dalla spiaggia, la casa offre un equilibrio perfetto tra privacy, comodità e qualità della vita. L'appartamento di circa 90 mq, si sviluppa con un luminoso soggiorno con angolo cottura, zona notte con parquet, tre camere (di cui due matrimoniali) e due bagni. Dalle camere matrimoniali e dal soggiorno si accede al magnifico terrazzo di circa 75 mq: un vero living all’aperto dove godersi cene, aperitivi al tramonto e momenti di pace.
Completa la proprietà un garage di 22 mq, collegabile direttamente all’appartamento.
In contesto tranquillo e silenzioso, a 5 km dalla spiaggia e a 5 min a piedi dal borgo medievale con servizi (farmacia, minimarket), questa proprietà è ideale sia per uso residenziale che come casa vacanza o per affitti stagionali.
STATO E FINITURE
Eccellenti condizioni di manutenzione, rifinito con gusto anche nei dettagli, costruito nel 2007. Zona notte con parquet. Finistre in legno con doppio vetro.
UTENZE E DOTAZIONI
Tutte le utenze sono collegate e gli impianti perfettamente funzionanti.
Possibilità di installare il camino o la stufa a pellet o legna.
USO E POTENZIALITA'
Data la vicinanza al centro storico di Lapedona (5 min a piedi), la breve distanza dal Mare Adriatico (5km), da Fermo e Porto San Giorgio (15 min), e dall'autostrada (10 min), questa proprietà è perfetta sia per uso residenziale, che come casa vacanza o per affitti stagionali.
POSIZIONE
Contesto semirurale
Minimarket, farmacia a 500m
Costa a 5 km
Lago a 10 km
Stazione sciistica a 70 km
Aeroporti: Ancona a 50 min, Pescara a 60 min
*Le informazioni contenute nel presente annuncio sono da considerarsi puramente indicative e non costituiscono elemento contrattuale. Sono state redatte sulla base dei dati disponibili al momento della pubblicazione, pertanto, non ci assumiamo alcuna responsabilità per eventuali inesattezze, omissioni o aggiornamenti successivi.



















