La Proprietà
Terreno 5000 mqDettagli
• AnnessoDescrizione
Casale tipico stile marchigiano in mattoni ristrutturato con locali accessori, rigoglioso giardino con alberi da frutto ed olivi, in vendita a Massa Fermana, Marche, Italia.
Sono previste agevolazioni fiscali per gli stranieri che si trasferiscono in questo Comune: Flat tax del 7% sui redditi di fonte estera per 10 anni.
CARATTERISTICHE
La proprietà si trova a poche decine di metri dalla strada secondaria, gode di privacy ma senza rimanere isolato.
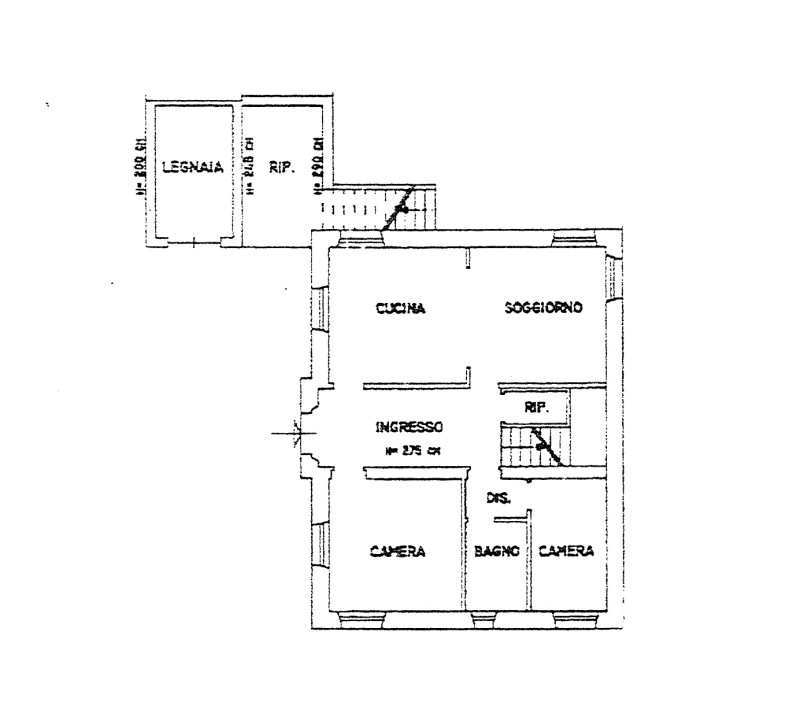
La porzione residenziale si sviluppa per 330 mq su tre piani.
- Al piano terra di circa 110 mq, troviamo la grande cucina, la sala da pranzo, la zona soggiorno, uno studio / camera ed un bagno.
- Al piano primo di circa 110 mq, al quale si accede tramite scala interna, si trovano 4 camere ed un bagno, una della camere ha l'accesso al balcone.
- Il piano secondo di ulteriori 110 mq circa, è attualmente utilizzato come ripostiglio, ma date le altezze del tetto può essere destinato anche ad un diverso uso.
Il piano seminterrato ospita un ampio locale cantina di circa 40 mq, in adiacenza al quale si trova un locale deposito di ulteriori 30 mq circa, completano la proprietà altri due locali accessori da ristrutturare di 35 mq circa ed un giardino in parte terreno agricolo di 5.000 mq circa.
CONDIZIONI E FINITURE
La parte residenziale del casale si presenta in ottime condizioni interne ed esterne, grazie al sapiente restauro effettuato circa 20 anni fa.
SERVIZI E UTENZE
Tutti i servizi sono connessi e funzionanti.
UTILIZZO E POTENZIALITÀ
La proprietà sarebbe ideale sia come casa per le vacanze che come residenza principale. Adatta sia come B&B che per affitti stagionali.
Questa tipico casale colonico si trova a 30 minuti circa di auto da spiagge, laghi e montagna. Le vicine città collinari medievali offrono fantastici cibi locali, cultura e storia. Sagre e mercati locali rendono la zona vivace.
POSIZIONE
Supermercato a 3 km
Costa a 35 km
Lago 30 km
Stazione sciistica 45 km
Aeroporto 80 km




















