La Proprietà
Terreno 20000 mqDettagli
• Appartamento indipendente • Piscina • TerrenoDescrizione
Per chi cerca qualcosa di diverso, questa casa degli anni ’70 con 5 camere da letto recentemente restaurata, piscina e una fantastica vista mare, è la soluzione perfetta. CLASSE ENERGETICA: B Ipe 143,61 kWh/m2 anno
Il restauro del 2022 che ha compreso, tra l’altro, gli impianti elettrico ed idraulico, la facciata, il tetto, 2 bagni e un impianto fotovoltaico da 18KW, ha riportato la casa ai giorni nostri. Lo stile è indubbiamente anni 70 ma il livello di comfort è 2024.
Caratteristiche
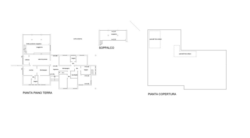
La casa, prevalentemente al piano terra, è composta da:
- un ingresso, un’ampia sala da pranzo, uno spaziosissimo salotto con caratteristico soppalco e splendida vista sul giardino fino al mare Adriatico, una cucina, 1 camera padronale con bagno en suite e cabina armadio, ulteriori 3 camere da letto e 2 bagni.
- zona separata che costituirebbe un appartamento indipendente composto da cucina, soggiorno, 2 camere da letto e bagno.
- piano interrato è presente il locale caldaia con la centrale di comando fotovoltaica e una cantina.
Il giardino recintato di 3000 mq è in fase di ristrutturazione e comprende un cancello automatico, 2 pozzi e una cisterna di raccolta acqua piovana per l’irrigazione, un gazebo e zona barbecue, illuminazione e una piscina fuori terra.
Il terreno agricolo di 17.000 mq si sviluppa verso est ed è composto da seminativo ed uliveto
Ubicazione
La villa in vendita nelle Marche a Sant'Elpidio a mare dista a
- 7 km dal mare
- 2 km da tutti i servizi.
- 7 km dall'autostrada
Uso e potenzialità
La casa è adatta come casa permanente o per le vacanze con un eccellente potenziale di affitto.
NOTE IMPORTANTI
Le informazioni contenute nel presente annuncio sono da considerarsi puramente indicative e non costituiscono elemento contrattuale. Sono state redatte sulla base dei dati disponibili al momento della pubblicazione. Pertanto, non ci assumiamo alcuna responsabilità per eventuali inesattezze, omissioni o aggiornamenti successivi.
Per proteggere la privacy dei proprietari delle abitazioni, ricordiamo che l'indirizzo sulla mappa è puramente indicativo della posizione dell'immobile.

 
                






































